|
Voir les messages sans réponse | Voir les sujets actifs
| Auteur |
Message |
|
Overflow
|
Sujet du message: Re: [Garage] Achat Terrain, Plan, Construction, Ammenagement Publié: 21 Avr 2021 15:11 |
|
Inscrit le: 03 Juil 2011 12:27 Messages: 12413 Localisation: Paysannie toulousaine
|
On voudra des photos du chantier 
_________________ Merci nature d'être là, super sympa.
|
|
| Haut |
|
 |
|
Shooter
|
Sujet du message: Re: [Garage] Achat Terrain, Plan, Construction, Ammenagement Publié: 21 Avr 2021 17:11 |
|
Inscrit le: 12 Oct 2011 12:05 Messages: 2900 Localisation: Montrouge
|
Et du produit fini. Les photos de chantier, c'est sympa, mais c'est quand même le résultat final le mieux. 
_________________ Afraid to lose control / And caught up in this world I've wasted time, I've wasted breath / I think I've thought myself to death
|
|
| Haut |
|
 |
|
joeldc13
|
Sujet du message: Re: [Garage] Achat Terrain, Plan, Construction, Ammenagement Publié: 22 Avr 2021 20:14 |
|
 |
| chandelle d'or de l'année 2017 |
Inscrit le: 05 Juil 2011 07:23 Messages: 8577
|
|
On vient d'avoir le retour de l'entreprise de construction (qui fera la plupart du gros oeuvre), démarrage du chantier fin Juin.
Je suis un peu deg car j'espérais fin Mai, mais quand je vois d'autres délai (ça parle de 2022 sur certains chantiers) ben je suis finalement content.
|
|
| Haut |
|
 |
|
Aragorn Le Rouge
|
Sujet du message: Re: [Garage] Achat Terrain, Plan, Construction, Ammenagement Publié: 22 Avr 2021 22:55 |
|
Inscrit le: 07 Août 2011 11:33 Messages: 3198
|
|
Tout à pris sacrément de retard...
Notre chantier (réfection complète de l'étage avec création d'une nouvelle chambre et un deuxième étage en mezzanine, (re)faire l'isolation, changer le mode de chauffage et installation d'une clim + transformation de notre chambre en suite parentale) devait commencer fin d'été il est reporté à fin d'année...
|
|
| Haut |
|
 |
|
joeldc13
|
Sujet du message: Re: [Garage] Achat Terrain, Plan, Construction, Ammenagement Publié: 23 Avr 2021 09:45 |
|
 |
| chandelle d'or de l'année 2017 |
Inscrit le: 05 Juil 2011 07:23 Messages: 8577
|
Clairement, et les matières premières commencent a augmenter sérieusement. Sinon je réfléchis (trop) sur l'aménagement du garage, je pense que je partirais sur une combinaison Beta C45 https://www.millmatpro.com/ensemble-datelier-beta-c45-12-tiroirs-plateau-inox-/beta/betac45millmat.htmC'est dans les fourchettes basses de prix, on trouve moins cher en équivalent leroy merlin / brico j'irai regarder sur place, mais j'ai l'impression que le rapport Q/P est pas mal sur Beta Je rajouterai probablement un meuble d'angle et quelques autres tiroirs. J'y mettrait un écran LCD 22" de récup et un ancien PC (un petit qui se fixe en vesa derrière l'écran) pour avoir accès aux manuels d'atelier, aux video tuto et à de la musique dans le garage, ça me coute rien car j'ai déjà le matos et je trouve que lorsque je bricole je suis tout le temps en train de faire des aller/retour pour regarder sur l'ordi du haut. Reste la question du sol aussi, un sol époxy me fait de l'oeil, mais si c'est un billet de 2500 aussi, je préfère le mettre dans l'atelier, il existe des kit resine epoxy "grand public" je ne sais pas ce que ça donne... Je pense à ça par exemple : https://www.maison-etanche.com/fr/revepoxy-garage-peinture-epoxy-garage-sol-atelier-local-commercial-magasin-177.html#/894-contenance-kit_5_kg_couvre_jusqu_a_16m_pour_2_couches/585-couleur-gris_2_ral_7046
|
|
| Haut |
|
 |
|
jayz
|
Sujet du message: Re: [Garage] Achat Terrain, Plan, Construction, Ammenagement Publié: 23 Avr 2021 10:02 |
|
Inscrit le: 02 Sep 2011 08:06 Messages: 2497
|
Pour le sol du garage : Sol chauffant et marbre. Il faut bien ça pour que les voitures se sentent à l'aise  Plus sérieusement, si tu veux un truc sérieux et bien posé, un sol epoxy c'est bien, mais laisse faire les pros. Entre la préparation (poussière), la sous couche selon le type de béton / l'humidité, etc, c'est une galère. Sinon tu peux aussi envisager une peinture "simple" du sol afin de limité la production de poussière et opter pour des dalles de sol. Il parait que c'est bien, mais je ne connais personne dans mon entourage qui l'ai déjà fait. C'est moins fragile qu'une peinture et tu peux changer qu'une dalle en cas de besoin.
|
|
| Haut |
|
 |
|
joeldc13
|
Sujet du message: Re: [Garage] Achat Terrain, Plan, Construction, Ammenagement Publié: 23 Avr 2021 10:05 |
|
 |
| chandelle d'or de l'année 2017 |
Inscrit le: 05 Juil 2011 07:23 Messages: 8577
|
jayz a écrit: Sinon tu peux aussi envisager une peinture "simple" du sol afin de limité la production de poussière et opter pour des dalles de sol. Il parait que c'est bien, mais je ne connais personne dans mon entourage qui l'ai déjà fait. C'est moins fragile qu'une peinture et tu peux changer qu'une dalle en cas de besoin. C'est mn problème a l'heure actuelle, le sol en béton produit énormément de poussière le garage est toujours dégueulasse. Faut que je regarde le tarif des dalles de sol, car j'ai un peu de surface quand meme (presque 50m²)
|
|
| Haut |
|
 |
|
Aragorn Le Rouge
|
Sujet du message: Re: [Garage] Achat Terrain, Plan, Construction, Ammenagement Publié: 23 Avr 2021 12:28 |
|
Inscrit le: 07 Août 2011 11:33 Messages: 3198
|
|
Pour le mien, la peinture epoxy c'était un gros surcout de mémoire. J'ai de la peinture "classique", elle n'a sauté qu'à un endroit, là où je manœuvre la corsa pour la garer (braquage à fond à l'arrêt).
Quand j'en serai à penser à refaire le sol, je passerai au polyurethane posé par un pro (ce que ne proposait pas l'entrepreneur que j'avais à l'époque) plutôt que de l'epoxy.
|
|
| Haut |
|
 |
|
Zoreil
|
Sujet du message: Re: [Garage] Achat Terrain, Plan, Construction, Ammenagement Publié: 23 Avr 2021 12:40 |
|
Inscrit le: 18 Juil 2011 09:55 Messages: 13967 Localisation: SQY
|
|
| Haut |
|
 |
|
Overflow
|
Sujet du message: Re: [Garage] Achat Terrain, Plan, Construction, Ammenagement Publié: 23 Avr 2021 14:58 |
|
Inscrit le: 03 Juil 2011 12:27 Messages: 12413 Localisation: Paysannie toulousaine
|
|
J'ai un truc similaire, ca évite beaucoup la poussière, mais ça s'arrache au niveau des roues de bagnoles
C'est quand même un bon service rendu par rapport au prix
_________________ Merci nature d'être là, super sympa.
|
|
| Haut |
|
 |
|
jayz
|
Sujet du message: Re: [Garage] Achat Terrain, Plan, Construction, Ammenagement Publié: 23 Avr 2021 16:04 |
|
Inscrit le: 02 Sep 2011 08:06 Messages: 2497
|
Zoreil a écrit: Quitte à y mettre des sous, autant partir sur de la Epoxy de chez les pros (sikkens, tollens, j'en connais pas d'autre  ) Par exemple j'ai mis ça dans mon établi : https://www.sikkens.fr/fr/produits/sikkens/wapex-660De mémoire c'est pas donné, genre 40€ le pot de 1L, mais à la couleur que tu veux. Et ça tient franchement mieux que la V33 que j'avais mis dans mon ancienne maison. Au bout de 2 mois ça partait déjà par endroit 
|
|
| Haut |
|
 |
|
canaille
|
Sujet du message: Re: [Garage] Achat Terrain, Plan, Construction, Ammenagement Publié: 23 Avr 2021 18:26 |
|
Inscrit le: 11 Juil 2011 23:22 Messages: 7218
|
T'as sikkens a côté de Truffaut plaisir si tu veux leur demander. Sikkens Solutions 01 30 68 37 55 https://maps.app.goo.gl/twcYnzasbQjx4kq8AMon pote Dave avait mis de l'epoxy ou équivalent, a l'époque il cherchait quelque chose qui se tâche pas avec les pneus. Chez ma mère j'avais mis de la peinture a sol Leroy Merlin, ça serait abîmé avec les années mais ça limitait clairement la poussière et la contamination du sol en cas de bouteille renversée. Je pense que le combo peinture et dalles dessus c'est une bonne solution.
|
|
| Haut |
|
 |
|
joeldc13
|
Sujet du message: Re: [Garage] Achat Terrain, Plan, Construction, Ammenagement Publié: 29 Avr 2021 22:26 |
|
 |
| chandelle d'or de l'année 2017 |
Inscrit le: 05 Juil 2011 07:23 Messages: 8577
|
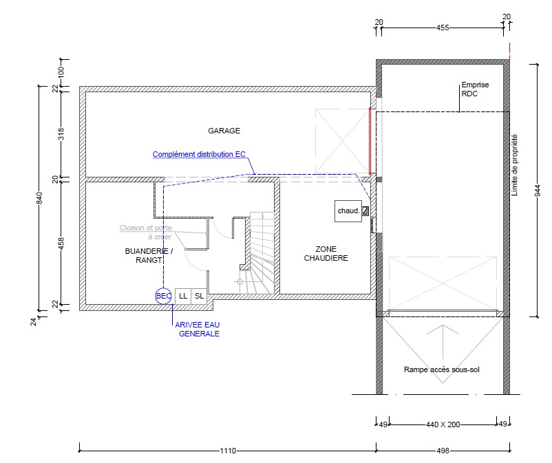
Pour ceux qui avaient un peu du mal a se projeter (et qui sont déjà venus à la maison, ça aide  ), les plans définitifs : Le niveau garage : Pièce jointe:
garage definitif.jpg [ 87.34 Kio | Consulté 13816 fois ]
Le rez de chaussée (avec la terrasse, la nouvelle chambre et le nouveau bureau) Pièce jointe:
rdc definitif.jpg [ 173.45 Kio | Consulté 13816 fois ]
Et le plan de coupe avec une descente de garage toute propre en béton désactivé Pièce jointe:
coupe definitif.jpg [ 40.88 Kio | Consulté 13816 fois ]
|
|
| Haut |
|
 |
|
Zoreil
|
Sujet du message: Re: [Garage] Achat Terrain, Plan, Construction, Ammenagement Publié: 29 Avr 2021 22:43 |
|
Inscrit le: 18 Juil 2011 09:55 Messages: 13967 Localisation: SQY
|
|
| Haut |
|
 |
|
felinkinkin
|
Sujet du message: Re: [Garage] Achat Terrain, Plan, Construction, Ammenagement Publié: 30 Avr 2021 09:35 |
|
Inscrit le: 05 Juil 2011 09:59 Messages: 15268
|
|
| Haut |
|
 |
|
Neobob22
|
Sujet du message: Re: [Garage] Achat Terrain, Plan, Construction, Ammenagement Publié: 03 Mai 2021 09:58 |
|
Inscrit le: 03 Sep 2013 18:50 Messages: 289
|
joeldc13 a écrit: Pièce jointe: coupe definitif.jpg et voilà, déjà fait un burn dans le garage pour prendre assez d'élan pour qu'elle décolle en haut comme ça superbe projet Joël 
|
|
| Haut |
|
 |
|
joeldc13
|
Sujet du message: Re: [Garage] Achat Terrain, Plan, Construction, Ammenagement Publié: 13 Juil 2021 12:35 |
|
 |
| chandelle d'or de l'année 2017 |
Inscrit le: 05 Juil 2011 07:23 Messages: 8577
|
Petit update, les travaux intérieurs ont démarré en Juin, plomberie, électricité et faïence sont posés dans la salle de bains de l'étage (ancienne chambre d'Alice)   Cette semaine, le sol devrait être posé. On en a profité ce WE pour démonter la terrasse car le gros œuvre commence. La terrasse a été intégralement récupérée par des amis pour éviter qu'elle ne parte à la poubelle (plots, charpente et lames composites)  Enfin, aujourd'hui 3 ouvriers sont présents, la base vie autonome a été installée, et ils sont en train de périmètrer le chantier avec des barrières   Jeudi, le terrassement démarre.
|
|
| Haut |
|
 |
|
canaille
|
Sujet du message: Re: [Garage] Achat Terrain, Plan, Construction, Ammenagement Publié: 13 Juil 2021 17:09 |
|
Inscrit le: 11 Juil 2011 23:22 Messages: 7218
|
C'est quoi cette base ? Connais pas. Pour ta salle de bain, le carrelage est collé sur le mur comme ça ? Pas de primaire d'accrochage ou d'étanchéité particulière ? Car bon, je pense pas qu'Alice avait du placo hygro avant 
|
|
| Haut |
|
 |
|
joeldc13
|
Sujet du message: Re: [Garage] Achat Terrain, Plan, Construction, Ammenagement Publié: 13 Juil 2021 18:12 |
|
 |
| chandelle d'or de l'année 2017 |
Inscrit le: 05 Juil 2011 07:23 Messages: 8577
|
canaille a écrit: C'est quoi cette base ? Connais pas.
C'est le cabanon de chantier des équipes de terrassement et de maçonnerie, ça a l'air pas mal quand même. canaille a écrit: Pour ta salle de bain, le carrelage est collé sur le mur comme ça ? Pas de primaire d'accrochage ou d'étanchéité particulière ? Car bon, je pense pas qu'Alice avait du placo hygro avant  Alors il y a eu au fond un doublage placo hygro qui a été rajouté (pour cacher toute la tuyauterie qui a été rajoutée), la chambre d'Alice était au départ une pièce devant être une salle de bains (l'évacuation était déjà présente, ainsi que l'arrivée d'eau, malheureusement en diametre trop petit, il fallu retirer tout depuis le sous sol). Donc la chambre est déjà en placo hydro. Et oui, primaire d'accrochage et d'étanchéité qui a été passé par le carreleur avant, bien évidement. Plus une bande d'étanchéité dans le coin.
|
|
| Haut |
|
 |
|
Overflow
|
Sujet du message: Re: [Garage] Achat Terrain, Plan, Construction, Ammenagement Publié: 13 Juil 2021 21:53 |
|
Inscrit le: 03 Juil 2011 12:27 Messages: 12413 Localisation: Paysannie toulousaine
|
Cool 
_________________ Merci nature d'être là, super sympa.
|
|
| Haut |
|
 |
|
Ricou
|
Sujet du message: Re: [Garage] Achat Terrain, Plan, Construction, Ammenagement Publié: 13 Juil 2021 22:01 |
|
Inscrit le: 17 Nov 2011 12:50 Messages: 1300 Localisation: IDF
|
|
Ouh le gros chantier qui commence. Top !
|
|
| Haut |
|
 |
|
joeldc13
|
Sujet du message: Re: [Garage] Achat Terrain, Plan, Construction, Ammenagement Publié: 15 Juil 2021 16:36 |
|
 |
| chandelle d'or de l'année 2017 |
Inscrit le: 05 Juil 2011 07:23 Messages: 8577
|
Première journée de gros œuvre terminée, les mecs sont venus à 3, le conducteur de travaux, le mec qui manie la pelleteuse 7.5T et le conducteur qui conduit la benne et le porte engin.    3 bennes de gravats sont parties, et ça fait un gros tas de terre a remblayer.
|
|
| Haut |
|
 |
|
Zoreil
|
Sujet du message: Re: [Garage] Achat Terrain, Plan, Construction, Ammenagement Publié: 15 Juil 2021 18:27 |
|
Inscrit le: 18 Juil 2011 09:55 Messages: 13967 Localisation: SQY
|
Le volume enlevé toujours impressionnant vs la même quantité compactée 
|
|
| Haut |
|
 |
|
joeldc13
|
Sujet du message: Re: [Garage] Achat Terrain, Plan, Construction, Ammenagement Publié: 15 Juil 2021 19:31 |
|
 |
| chandelle d'or de l'année 2017 |
Inscrit le: 05 Juil 2011 07:23 Messages: 8577
|
|
Ouais, franchement je sais pas d'où toute cette terre sort. Sachant que la c'est juste au niveau de la dalle du sol, il faut encore creuser pour les fondations tout autour, et creuser pour reformer la descente de garage
|
|
| Haut |
|
 |
|
canaille
|
Sujet du message: Re: [Garage] Achat Terrain, Plan, Construction, Ammenagement Publié: 15 Juil 2021 19:53 |
|
Inscrit le: 11 Juil 2011 23:22 Messages: 7218
|
Génial! La terre c'est 1.45 de foisonnement zozo 
|
|
| Haut |
|
 |
|
felinkinkin
|
Sujet du message: Re: [Garage] Achat Terrain, Plan, Construction, Ammenagement Publié: 17 Juil 2021 19:13 |
|
Inscrit le: 05 Juil 2011 09:59 Messages: 15268
|
J'ai toujours rêvé de conduire une pelleteuse 
|
|
| Haut |
|
 |
|
Neobob22
|
Sujet du message: Re: [Garage] Achat Terrain, Plan, Construction, Ammenagement Publié: 22 Juil 2021 17:46 |
|
Inscrit le: 03 Sep 2013 18:50 Messages: 289
|
grave y t'auraient pas laissé les clés ?
|
|
| Haut |
|
 |
|
felinkinkin
|
Sujet du message: Re: [Garage] Achat Terrain, Plan, Construction, Ammenagement Publié: 22 Juil 2021 18:54 |
|
Inscrit le: 05 Juil 2011 09:59 Messages: 15268
|
|
ba avec moi je lui creusais un parking a étage pour 8 voitures .
|
|
| Haut |
|
 |
|
jayz
|
Sujet du message: Re: [Garage] Achat Terrain, Plan, Construction, Ammenagement Publié: 23 Juil 2021 06:57 |
|
Inscrit le: 02 Sep 2011 08:06 Messages: 2497
|
un sous sol double ou triple même !!!! 
|
|
| Haut |
|
 |
|
joeldc13
|
Sujet du message: Re: [Garage] Achat Terrain, Plan, Construction, Ammenagement Publié: 15 Août 2021 13:56 |
|
 |
| chandelle d'or de l'année 2017 |
Inscrit le: 05 Juil 2011 07:23 Messages: 8577
|
Les travaux n'ont pas beaucoup avance pendant les congés car le conducteur de travaux était absent. Ils ont juste bossé la semaine dernière pour finir le terrassement, préparer les fondations et former la descente de garage   Semaine prochaine normalement ils attaquent le béton.
|
|
| Haut |
|
 |
Qui est en ligne ? |
Utilisateur(s) parcourant ce forum : Aucun utilisateur inscrit and 2 invités |
|
Vous ne pouvez pas publier de nouveaux sujets dans ce forum Vous ne pouvez pas répondre aux sujets dans ce forum Vous ne pouvez pas éditer vos messages dans ce forum Vous ne pouvez pas supprimer vos messages dans ce forum Vous ne pouvez pas insérer de pièces jointes dans ce forum
|
|
|